Generali
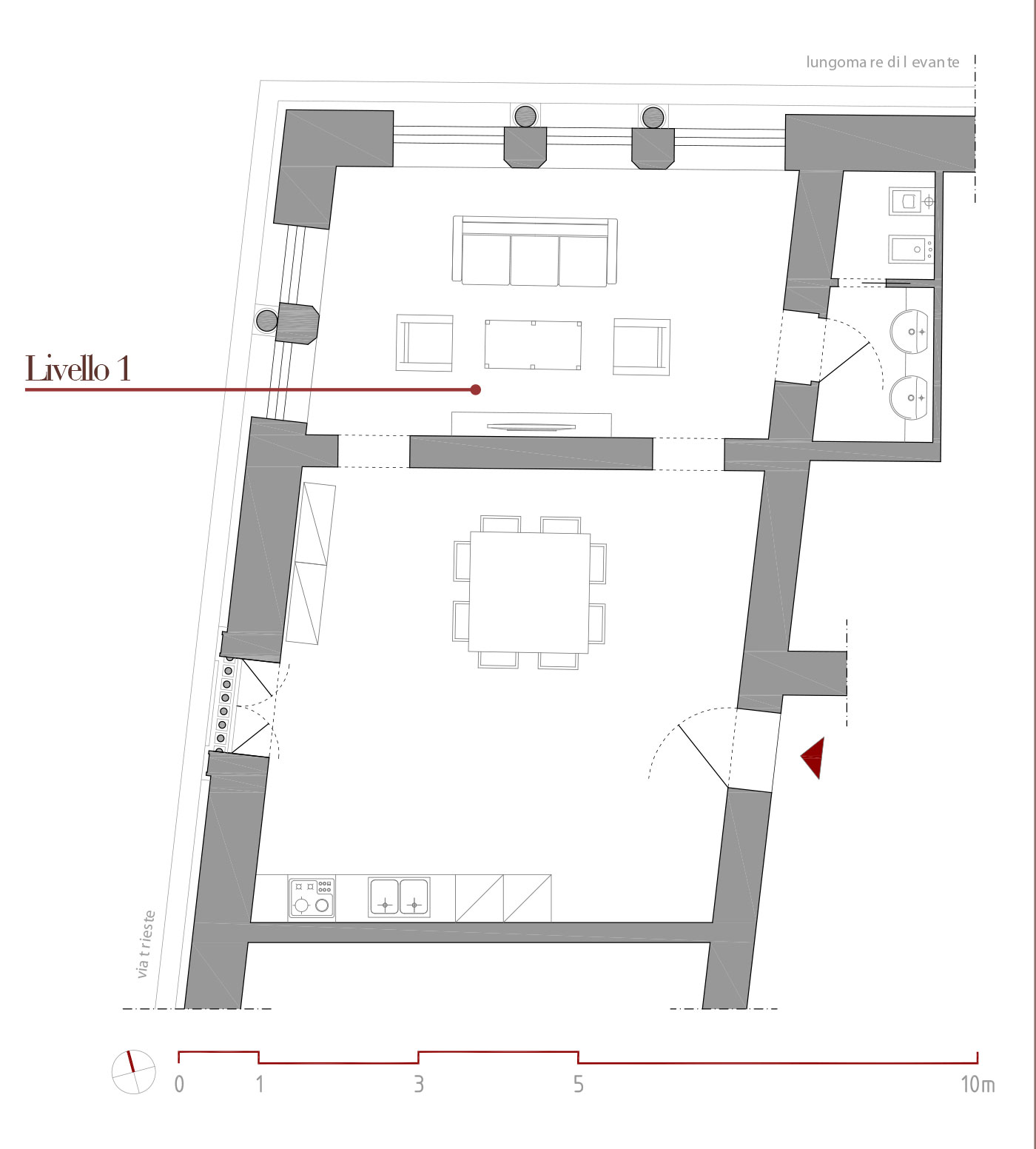
- dimensioni livello 1 – 76,40 mq
- altezza livello 1 – (min-max)3,00 – 6,70 m
- copertura piana e a doppia falda
- aperture 3 su lungomare di levante
- bagni 1
- infissi esterni in legno lamellare larice (sp.64mm)
- vetri camera a basso emissivo (6/7 -9 – 4 mm)
- tetto con pacchetto coibentazione composta da:Â travi principali e capriate in legno lamellare
- finitura con tegole tipo coppo siciliano
- gronda e pluviali in rame
Materiali
- solaio misto in legno lamellare e cls
- massetti termoacustici 8/13 cm lecacem mini
- predisposti a – 4 cm dal livello della pavimentazione finita
- intonaco traspirante spessorato realizzato con malta di calce idraulica, pozzolana naturale ed inserti di sabbia calcarea
- tonachina altamente traspirante di colore bianco realizzata a base di calce
- finitura liscia a base di calce e gesso
- portoncino ingresso blindato
Impianti
- impianto di condizionamento idronico
- impianto caldaia
- impianto elettrico
- impianto citofonico
- impianto tv
- impianto idrico per apparecchi igienico-sanitari
- impianto termoarredo

